Dans le cadre du projet de rénovation de point de vente à Paris, nous avons été missionnés par l’architecte pour réaliser les plans du bâtiment. Nous avons donc réalisé un relevé 3D laser intérieur et extérieur de la boutique afin de produire différents livrables : un nuage de points colorisé, une maquette 3D Revit, des plans et des coupes .dwg et une visite virtuelle 3D
Réalisation d’un relevé 3D à Paris
La boutique offre une surface d’environ 100 mètres carrés de pleins pied. Elle est située dans le 5eme arrondissement de Paris
Pour ce projet, nous avons commencé par numériser l’intérieur et l’extérieur de cet espace commercial avec un scanner laser 3D, le Leica BLK 360°. Il offre une précision de 6mm jusqu’à 10 mètres de distance et de 8mm jusqu’à 20 mètres. En assemblant les 30 scans nous avons recréer un jumeau numérique fiable sous forme d’un nuage de points colorisé.
Créations d’une maquette Revit à partir du nuage de points.
Une fois le nuage de points assemblé, nous l’avons importé dans le logiciel d’architecture Revit afin de créer une maquette 3D BIM avec un niveau de détail LOD 200.
Un LOD 200 correspond à une représentation générique des éléments modélisés : les murs, sols et toitures sont définis par des épaisseurs englobant les éventuelles structures secondaires (solivages, hourdis, voussettes…), les poteaux et poutres par des sections primitives (rectangulaires ou circulaires), et les portes, fenêtres et garde-corps sont matérialisés par des éléments génériques adaptés à leurs dimensions.
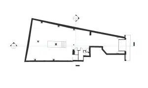
Réalisation de plans et de coupes .dwg pour AutoCad
Pour le relevé 3D de cet espace commercial situé à Paris, nous avons également produit des plans 2D au format dwg et pdf destiné à être exploitées dans AutoCad, le logiciel d’architecture le plus utilisé.
En effet, c’est un format encore très utilisé, plus léger et facilement manipulable qu’une maquette 3D. Ils sont notamment utilisé pour imprimer des plans d’exécution à destination des prestataires.

Réalisation d’une visite virtuelle 3D
Nous avons également utilisé la donnée captée par le scanner laser pour créer une visite virtuelle intégrant à la fois un modèle 3D et de photos 360°.
C’est un support très utile car il ne nécessite pas de logiciel et permet à l’architecte d’échanger facilement avec son clients et ses prestataires, en limitant les déplacements inutiles.





















































