Dans le cadre du projet de rénovation de cette maison près d’Annecy, à Doussard, nous avons été missionnés par l’architecte pour réaliser les plans du bâtiment. Nous avons donc réalisé un relevé 3D laser intérieur et extérieur de la maison afin de produire différents livrables : un nuage de points colorisé, une visite virtuelle 3D, une maquette Revit et des plans DWG.
Réalisation d’un relevé 3D Laser d’une maison à Annecy
La maison, d’une surface d’environ 150 mètres carrés est composée de deux étages ainsi que d’une parcelle offrant une magnifique vue sur le lac d’Annecy.
Pour ce projet, nous avons commencé par numériser l’intérieur et l’extérieur de la maison avec un scanner laser 3D, le Leica BLK 360°. Il offre une précision de 6mm jusqu’à 10 mètres de distance et de 8mm jusqu’à 20 mètres. En assemblant les 60 scans nous avons recréer un jumeau numérique fiable sous forme d’un nuage de points colorisé.


Création d’une maquette 3D à partir du scan 3D
Une fois le nuage de points assemblé, nous l’avons importé dans le logiciel d’architecture Revit afin de créer une maquette 3D BIM avec un niveau de détail LOD 200.


Un LOD 200 correspond à une représentation générique des éléments modélisés : les murs, sols et toitures sont définis par des épaisseurs englobant les éventuelles structures secondaires (solivages, hourdis, voussettes…), les poteaux et poutres par des sections primitives (rectangulaires ou circulaires), et les portes, fenêtres et garde-corps sont matérialisés par des éléments génériques adaptés à leurs dimensions.

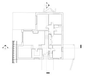
Extraction de Plan DWG à partir de la maquette
Pour le relevé 3D de cette maison à Annecy, nous avons également produit des plans 2D au format dwg et pdf.
En effet, c’est un format encore très utilisé, plus léger et facilement manipulable qu’une maquette 3D. Ils sont notamment utilisé pour imprimer des plans d’exécution à destination des prestataires.
Nous avons donc exporter depuis la maquette Revit: un plan masse, 3 plans d’étages, 4 plans de façade et 2 coupes.

Réalisation d’une visite virtuelle 3D
Nous avons également utilisé la donnée captée par le scanner laser pour créer une visite virtuelle intégrant à la fois un modèle 3D et de photos 360°.
C’est un support très utile car il ne nécessite pas de logiciel et permet à l’architecte d’échanger facilement avec son clients et ses prestataires, en limitant les déplacements inutiles.
La visite permet d’explorer la maison dans ses moindres recoins, d’en apprécier l’environnement avec sa vue sur le lac d’Annecy. Elle permet également d’anticiper à distance les vis à vis






















































